This Tiny $52,000 Home Comfortably Houses 4 People In Just 263 Square Feet
2020 is making some of us wish that we could jet off into outer space and take a break from all the problems and challenges on Earth. While we can’t fly off for a quick getaway just yet, what we can do is find a futuristic smart home that looks just like a spaceship. [Rocket engines and terraforming kits sold separately.]
The Cube Two prefabricated home design is made by Singapore’s Nestron and it has a lot of cool perks. For one, this tiny house all ready to move in on arrival. Second of all, it has an integrated artificial intelligence assistant. And with 263 square feet (24.4 square meters), the house design large enough to house families of three or four people.
Scroll down to check out the clever design of the outside and the inside of this affordable housing unit. Remember to let us know in the comments what you think about this smart small house, dear Pandas!
More info: Nestron.House | Facebook
This is the Cube Two prefabricated smart home by Nestron. Here’s what it looks like from the outside. Now let’s check out the inside!
Image credits: Nestron
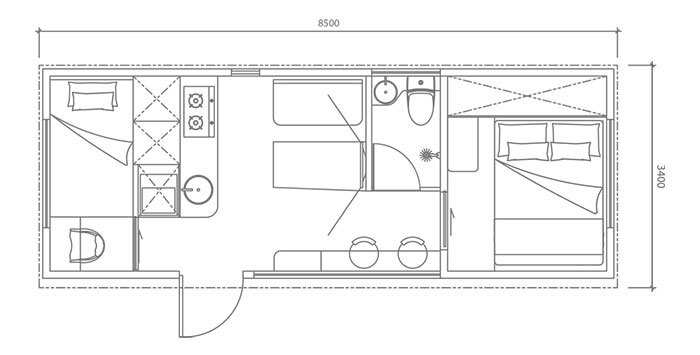
Here’s what the layout of the prefab home looks like
Image credits: Nestron
The Cube Two is ready to move in upon arrival
Image credits: Nestron
Inside this sci-fi-looking home, you’ll find a living room, a kitchen, a bathroom, a bedroom, and bar counter
Image credits: Nestron
The Cube Two smart home is very compact. It increases usable space over a traditional house by 15%
Image credits: Nestron
There’s even a skylight to let in natural light and to make the inside of the home feel bigger
Image credits: Nestron
Most of the furniture is included in the base price of the home
Image credits: Nestron
Some of the furniture that comes with it includes a dining table, a sofa, a bed rack, a wardrobe, and a bedroom counter
Image credits: Nestron
Even though the home is compact, it’s large enough for three or four family members to live here
Image credits: Nestron
The smart home as a fully-integrated AI assistant that connects all the appliances together
Image credits: Nestron
The AI assistant, Canny, learns and adapts over time
Image credits: Nestron
Even the lights can be voice-controlled with the help of the AI
Image credits: Nestron
The Cube Two feels like a tiny spaceship, doesn’t it?
Image credits: Nestron
The prefab home is 263 square feet (24.4 square meters) big
Image credits: Nestron
The Cube Two is available for preorder. The cost of the home starts at $52,000. But there are additional costs for add-on electrical appliances and shipping
Image credits: Nestron
Nestron has a few core ideas that it works and builds by. They want to make affordable and eco-friendly housing that looks and feels modern. They also take pride in their engineering skills.
For example, the insulation they use means that their prefab homes are fit for all climates—from hot to cold, to everything in between. Meanwhile, the tiny houses are made of fireproof and earthquake-resistant materials. This means that you should be safe no matter where you decide to plop down your new Cube Two.
All Nestron smart houses have a fully-integrated AI assistant. You can use your voice to control most functions and the coolest part is that the AI learns your way of living over time.
The company’s values of eco-friendly affordable housing have their roots in Papua New Guinea where Nestron’s founders went in 2013 to build prefab houses for the poor. However, they were met with a lot of obstacles, including problems with local subcontractors, missing materials, and delays. Fortunately, this mission solidified the founders’ ideals: they created the company four years later, in 2017 on this foundation.
130Kviews
Share on FacebookIs that see through glass shower and toilet in the kitchen/living room? Is everyone supposed to just sit and eat their dinner and watch while someone else is sat taking a dump, staring back out at them. Why, why, why would anybody put that there?
I can't help but think of the smell of certain bathroom activities lingering through all 263 square feet!
Load More Replies...Seems like a waste of money. For $50k you can buy an actual prefab house that doesn't have a toilet on full display.
It may be able to comfortably sleep a family of four but I imagine a family four actually living on 24 square meters might be a different story.
Maybe for a weekend getaway. I'd rather get an RV with that much space and go places.
Load More Replies...Is that see through glass shower and toilet in the kitchen/living room? Is everyone supposed to just sit and eat their dinner and watch while someone else is sat taking a dump, staring back out at them. Why, why, why would anybody put that there?
I can't help but think of the smell of certain bathroom activities lingering through all 263 square feet!
Load More Replies...Seems like a waste of money. For $50k you can buy an actual prefab house that doesn't have a toilet on full display.
It may be able to comfortably sleep a family of four but I imagine a family four actually living on 24 square meters might be a different story.
Maybe for a weekend getaway. I'd rather get an RV with that much space and go places.
Load More Replies...
















220
87